Predmet OPPN se glede na izkazano investicijsko namero nanaša na izgradnjo sodobne stanovanjske soseske z večstanovanjskimi in enostanovanjskimi objekti, poslovnimi prostori, parkovnimi ureditvami in pripadajočo infrastrukturo.
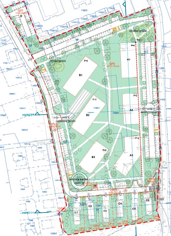
Območje OPPN se nahaja v južnem delu mesta Brežice in se nanaša na degradirano območje nekdanje Tovarne pohištva Brežice. Z načrtovanimi prostorskimi ureditvami se bo obstoječe degradirano območje saniralo.
Na severnem delu območja OPPN ob obstoječi večstanovanjski soseski »Trobentica« se predvideva ureditev parkirnih in zelenih površin. V osrednjem delu območja OPPN je predvidena gradnja šestih večstanovanjskih objektov. V enem od objektov ob Trdinovi ulici so poleg stanovanjskih enot predvidene tudi poslovne enote. Objekte med seboj povezuje podzemna garaža na nivoju kleti. Na južnem delu območja OPPN je predvidena pozidava z enostanovanjskimi stavbami. Predvidenih je šest stanovanjskih stavb.
Celotno območje soseske je zasnovano tako, da bo zagotovljena kvaliteta bivanja z ozirom na sosednje obstoječe objekte. Predvidene ureditve se prilagajajo obstoječim prostorskim značilnostim, zagotavljajo učinkovito rabo prostora in ohranjajo kvalitetne urbanistične zasnove.
S predmetnim OPPN se določijo merila in pogoji za gradnjo skladno z nadrejenimi prostorskimi akti, izraženo investicijsko namero in izdelano idejno zasnovo, usmeritvami nosilcev urejanja prostora in sodelovanjem javnosti.
Javna razgrnitev bo potekala od 24.2.2023 do vključno 27.3.2023 v času uradnih ur na Oddelku za prostor Občine Brežice. Gradivo dopolnjenega osnutka OPPN bo objavljeno tudi na spletni strani občine www.brezice.si (Sporočila za javnost) ter na naslovu www.brezice.si/sl/prostor/ (spletni portal Prostor), pod zaporedno št. 4: OPPN TOP soseska.
Javna obravnava prostorskega akta bo v sredo, 15.3.2023 ob 16. uri v sejni sobi na Občini Brežice.
Pisne pripombe in predloge na prostorski akt lahko zainteresirani v času javne razgrnitve podajo pisno v knjigi pripomb v prostorih Občine Brežice (Oddelek za prostor), posredujejo po pošti na Občino Brežice, Oddelek za prostor, Cesta prvih borcev 18, 8250 Brežice ali na elektronski naslov obcina.brezice@brezice.si.
Občina bo preučila pripombe in predloge javnosti ter do njih zavzela stališča, ki bodo objavljena na zgoraj navedeni spletni strani portala Prostor ter na oglasni deski Oddelka za prostor Občine Brežice.





