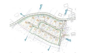
Občinski svet Občine Trebnje je na 4. redni seji sprejel Odlok o občinskem podrobnem prostorskem načrtu za »stanovanjsko sosesko v vasi Dobrava (DOB-015 SS)«. Namen OPPN-ja je določiti pogoje za gradnjo enostanovanjskih stavb za mlade družine s pripadajočo infrastrukturo. Večina območja, ki se ga ureja s tem OPPN-jem, je v lasti Občine Trebnje, tako da bo ob racionalni izvedbi potrebne infrastrukture lahko mladim družinam omogočen nakup opremljenih gradbenih parcel po dostopnih cenah.
Območje zajema še nepozidani jugozahodni del vasi Dobrava, ki ga na severu in zahodu omejuje regionalna cesta R3-650/1159 Žužemberk–Pluska–Trebnje, na vzhodu pa obstoječa pozidava vasi Dobrava. Južno od območja se nahaja obsežen kompleks kmetijskih zemljišč.
Občinska uprava Občine Trebnje,
Oddelek za okolje, prostor in infrastrukturo





