Pred mesecem dni smo na Upravno enoto Ljubljana oddali vlogo za izdajo gradbenega dovoljenja za novo osnovno šolo v Preski. Ocenjena vrednost celotnega projekta se trenutno giblje okoli 15 milijonov evrov. Sanacija škode po poplavah bo projekt izgradnje nove osnovne šole verjetno nekoliko zamaknila, a gradnja šole še vedno ostaja prva prioriteta med večjimi investicijskimi projekti.
V času projektiranja vključili različne deležnikeLani maja smo z izbranim izvajalcem, podjetjem Atelje Hočevar d.o.o. podpisali dobrega pol milijona evrov vredno pogodbo projektiranja in projektantskega nadzora za novo šolo v Preski. V času projektiranja je bila ves čas vključena Osnovna šola Preska, projekt smo večkrat predstavili zaposlenim, staršem, krajevni skupnosti in na skupnem sestanku tudi najbližjim sosedom. V vseh fazah smo zelo dobro sodelovali z izbranim odgovornim projektantom, direktorjem podjetja, doc. Primožem Hočevarjem, univ. dipl. inž. arh.. Gre za zahteven projekt pri katerem je potrebno upoštevanje visokih standardov gradnje. V času projektiranja so bili pridobljeni vsi projektni pogoji in mnenja. Pripombe sosedov se nanašajo predvsem na zagotovitev nove cestne povezave, saj je obstoječa Bizantova cesta ozka in neprimerna za glavno dostopno cesto do nove šole. Občina Medvode se zato zavzema za čimhitrejšo izgradnjo nove dostopne ceste do nove šole, ki se bo na Škofjeloško cesto priključila v bližini lovskega doma. Trenutno tečejo postopki spremembe namenske rabe zemljišč v okviru spremembe OPN SD1.
Ob vložitvi vloge za izdajo gradbenega dovoljenja je župan Nejc Smole ponovil zavezo najbližjim sosedom nove šole: »Pri tem projektu smo se odločili, da vložimo vlogo za gradbeno dovoljenje, prebivalcem v Preski pa dajemo zelo jasno zavezo, da se gradnja navkljub pridobljenemu gradbenemu dovoljenju ne bo začela pred sprejemom Občinskega prostorskega načrta, kjer je med glavnimi strateškimi pobudami prav umestitev nove ceste do nove šole. Ocenjujem, da, ko bomo ministrstvu za kmetijstvo, ki bo tukaj ključni soglasodajalec, predstavili, za kako pomembno cesto gre, da bodo to razumeli.«
Hitrost pridobivanja gradbenega dovoljenja je odvisna od Upravne enote Ljubljana, po zadnjih izkušnjah pa postopek lahko traja do leta dni.
Poplave prekrižale mnoge načrteNova osnovna šola v Preski je največji projekt v zgodovini Občine Medvode, zato bo zelo zahtevno tudi zagotavljanje potrebnih finančnih sredstev. Na junijski seji je Občinski svet Občine Medvode sprejel Odlok o ustanovitvi proračunskega sklada za nadomestno gradnjo OŠ Preska v katerem bomo zbirali finančna sredstva za novo osnovno šolo. V letošnjem proračunu sta za projekt rezervirana 2 milijona evrov, a so letošnja sredstva, zaradi nujne sanacije po poplavah, trenutno pod vprašajem.
Kot je povedal župan Nejc Smole: »Na dinamiko pridobivanja gradbenega dovoljenja poplave ne bodo vplivale. Bomo pa videli, kako bo proti koncu leta s financami, ali nam bo v sklad uspelo dodati dva milijona evrov ali bomo morali sredstva znižati. Nikakor pa se temu projektu ne nameravamo odpovedati.«
Po pridobljenem gradbenem dovoljenju bo izpolnjen pogoj za kandidiranje na morebitnih objavljenih razpisih. Verjamemo, da bo Ministrstvo za vzgojo in izobraževanje nadaljevalo s sofinanciranjem investicij v osnovne šole in še povečalo finančna sredstva. Spremljali bomo tudi druge možne vire financiranja, zagotovo pa bo za izvedbo projekta potrebno tudi zadolževanje Občine Medvode.
Kako so tekli postopki do sedaj?Občina Medvode se že dolga leta srečuje s problematiko pomanjkanja prostora v Osnovni šoli Preska, hkrati pa je poleg prostorske stiske pereč tudi problem potresne varnosti obstoječe šole. Gre za kompleks treh objektov, ki so bili grajeni v treh obdobjih. Najstarejši del (»stara stavba«) je bil zgrajen leta 1931, drugi (»nova stavba«) leta 1963 in tretji, ki predstavlja telovadnico, leta 1974. Za potrebe izvajanja devetletke je bil leta 2006 zgrajen vezni hodnik med »staro« in »novo« stavbo. V letu 2015 je bil izveden montažni prizidek – jedilnica k OŠ Preska, v letu 2021 pa je bil izveden montažni prizidek dveh učilnic, pri obeh gre za modularno gradnjo.
Občina Medvode je, po spremembi namenske rabe zemljišč na novi lokaciji in pridobitvi lastništva, v drugi polovici leta 2018 pristopila k izdelavi natečajne naloge za potrebe izvedbe javnega natečaja za pridobitev urbanistične in arhitekturne rešitve za izgradnjo OŠ Preska, ki jo je izdelalo podjetje Standard d.o.o. Meseca marca 2019 je bil s pomočjo Zbornice za arhitekturo in prostor Slovenije objavljen javni natečaj za izbiro strokovno najprimernejše rešitve. Ocenjevalna komisija je prejete elaborate na svojih sejah strokovno pregledala in o njih razpravljala glede na zastavljena merila za ocenjevanje. Komisija je sprejela soglasno odločitev glede strokovno najprimernejše rešitve, ki jo je izdelal ponudnik Atelje Hočevar d.o.o.
V letu 2022 je Občinski svet Občine Medvode na svoji seji obravnaval predinvesticijsko zasnovo za projekt Osnovna šola Preska in jo potrdil. Na osnovi potrjene predinvesticijske zasnove je Občina Medvode z zmagovalcem natečajne rešitve podpisala pogodbo za izdelavo projektne dokumentacije.
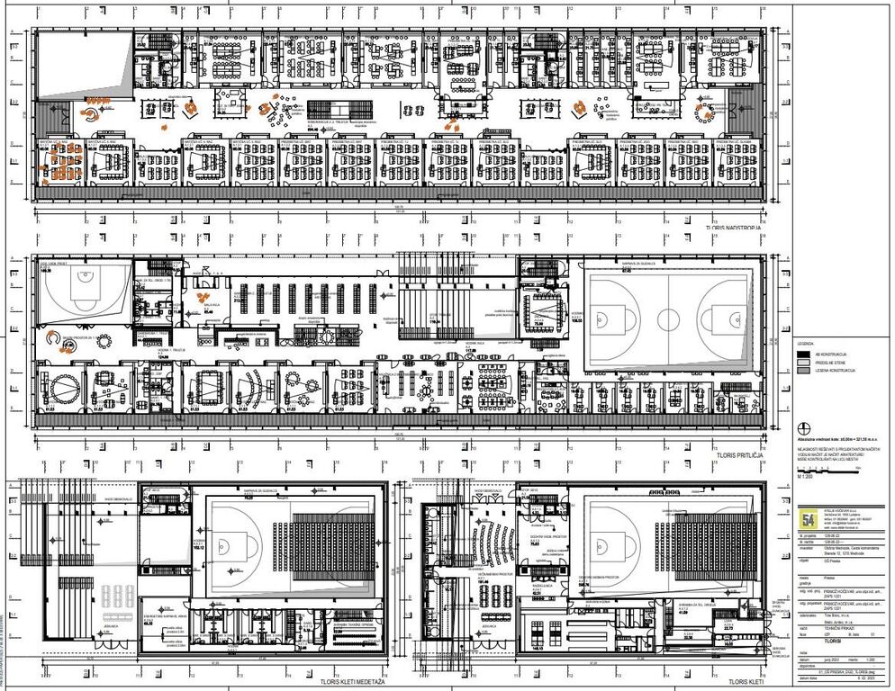
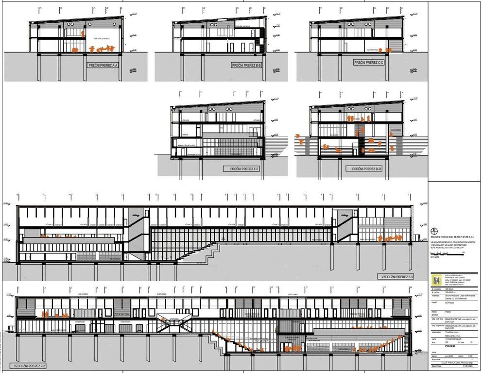
Kakšna bo nova osnovna šola?Načrtovani objekt je pravokotne zasnove, etažnosti K+P+1. Le-ta se prilagaja obstoječi topografiji terena, za katerega je značilna močna brežina, ki poteka v smeri S-J. Maksimalni gabarit objekta znaša 121,20 x 28,9 m. Višina objekta je na zahodni strani 11 metrov in na vzhodni strani 17 metrov.
V kleti objekta so predvideni servisni prostori in prostori za shranjevanje, vadbeni prostor, sanitarije, večnamenski prostor, dodatni vadbeni prostor, kuhinja in jedilnica, v medetaži se nahajajo prostori za shranjevanje športne opreme, kabinet športnega pedagoga in sanitarni bloki za uporabo telovadnice, naprave za gledalce. V pritličju se nahajajo matične učilnice prvega triletja s kabineti, zbornica, uprava, garderobe za vse učence ob vhodih v objekt in knjižnica z multimedijsko učilnico. V nadstropju so matične učilnice drugega triletja in predmetne učilnice s kabineti.
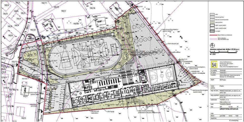
Šolsko dvorišče se nahaja na osrednjem delu šolskega območja, vzdolž celotne severne stranice šolske stavbe. Dostopno je z zahodne in vzhodne smeri. Na šolskem igrišču na severu objekta sta predvideni dve igrišči za košarko, ki sta umeščeni tako, da je na površini možna tudi izvedba nogometa ali rokometa. Poleg tega je predvideno igrišče za odbojko, badminton, met krogle in skok v daljino ter 200-metrsko tekališče. Šolsko dvorišče je od športnega dela mestoma ločeno z gručami dreves. Na zahodu se šolsko dvorišče in šolsko športno igrišče združita v večfunkcionalen skupni prometni prostor na območju stičišča Bizantove ceste in Ceste v Bonovec. Na južnem delu objekta je predviden vrt za 1. triado vzdolž učilnic 1. triade. Na severovzhodnem delu gradbene parcele je predvidena ureditev parkirnih površin za 104 parkirna mesta z ozelenitvijo z drevesi. Višinska razlika terena je premoščena z utrjeno brežino z betonskimi amfiteatralnimi tribunami, opornimi zidci in peščenim nasutjem, zelenjem in drevjem. Na skrajnem zahodu parcele je predvidena preureditev neurejenega križišča v manjši vhodni park in ureditev varne "drop off" cone za najmlajše šolarje.
Velikost gradbene parcele znaša 14.563 m2, zazidane površine 3.264 m2, uporabna površina objekta bo 6.424,3 m2, neto tlorisna površina 6.619,11 m2, bruto tlorisna površina pa 7.375,8 m2.




