Ob letošnjem sprejemu odličnjakov je župan osnovnošolce seznanili tudi z občinskimi načrti za ureditev »Medgeneracijskega središča pri OŠ Horjul«. Osnovnošolci so si projekt za ureditev okolice Osnovne šole Horjul podrobno ogledali in bili nad njim navdušeni.
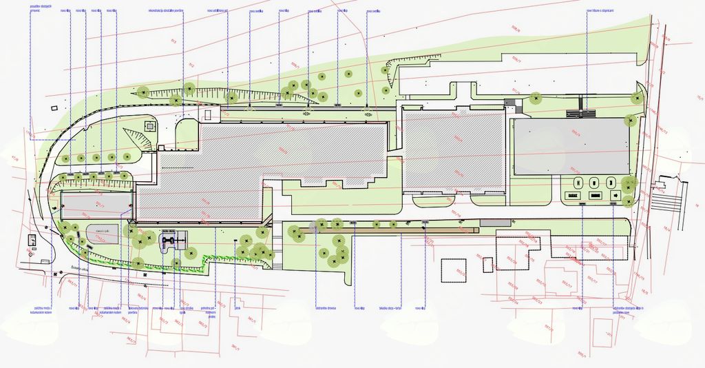
Celotni projekt obsega ureditev zunanjih skupnih površin in aktivnosti za spodbuditev zdravega življenja, z namenom dviga kakovosti življenja prebivalcev ter izboljšanja medsebojnega sodelovanja. Investicija obsega postavitev zaščitne ograje okoli manjšega asfaltiranega igrišča ter postavitev dveh košarkaških košev. Poleg obstoječih igral ob šoli, se bo postavilo še dodatno igralo s toboganom, uredila se bo okolica z zatravitvijo in izravnavo terena, zraven pa se bo postavil tudi pitnik za vodo. Okoli celotne šole se bo uredila sprehajalna pot, postavilo se bo tudi več klopi. Urejena okolica pa obsega tudi postavitev tekaške steze v dolžini 70 m, preplastitev obstoječega asfaltiranega igrišča ter postavitev tribun. Velika pridobitev za okolico pa bo tudi postavitev dveh vadbenih naprav za starejše, ki bosta omogočali druženje različnih generacij med seboj.
V upanju, da bomo za projekt uspeli pridobiti tudi evropska sredstva, smo se s projektom »Medgeneracijsko središče pri OŠ Horjul« v maju prijavili na 1. javni poziv LAS Barje z zaledjem. Prijavljeni projekt poleg zgoraj navedenega investicijskega dela, katerega nosilec bo Občina Horjul obsega tudi izvedbo dveh delavnic v izvedbi Centra starejših Horjul ter dveh športnih prireditev, ki jih bo organiziral ŠD Extrem.
V kolikor bomo na razpisu uspešni, se predvideva izvedba celotnega projekta v prvi polovici leta 2018.



