V prazničnem mesecu decembru smo prejeli odlično novico. Občina Medvode je bila uspešna na Javnem razpisu za sofinanciranje investicij v vrtcih in osnovnem šolstvu v Republiki Sloveniji v obdobju 2026–2029, ki ga je poleti objavilo Ministrstvo za vzgojo in izobraževanje. S projektom nove Osnovne šole Preska smo uspešno kandidirali in pridobili najvišje možno sofinanciranje v višini 3.344.348,00 evra.
Ministrstvo za vzgojo in izobraževanje je v okviru razpisa za obdobje 2026–2029 za investicije v vrtce in osnovne šole skupaj namenilo 160 milijonov evrov. Strokovna komisija je odobrila:
- 28 vlog za investicije v vrtce v skupni vrednosti 44,6 milijona evrov,
- 12 vlog za osnovne šole s prilagojenim programom v vrednosti 21,1 milijona evrov,
- 63 vlog za investicije v osnovne šole v skupni vrednosti 93,57 milijona evrov.
Župan Nejc Smole je ob prejemu sklepa zapisal:
»Občina Medvode je s prijavljenim projektom Osnovna šola Preska med vsemi prijavami za sofinanciranje investicij v osnovne šole, le teh je bilo 79, dobila 60 točk, kar nas je uvrstilo na 6. mesto izmed vseh in nam zagotovilo najvišje možno sofinanciranje v višini 3.344.348,00 EUR. Hvala sodelavkam v upravi za izjemno delo! Korak za korakom lepo sestavljamo tudi finančno konstrukcijo tega velikega projekta, ki je pred nami.«
Uspeh na razpisu predstavlja pomemben mejnik pri uresničevanju projekta nove Osnovne šole Preska ter potrjuje kakovostno pripravljeno projektno dokumentacijo.
Naslednji koraki gradnje nove osnovne šolePred začetkom gradnje načrtujemo novo dostopno cesto do lokacije nove Osnovne šole Preska. Gradnja nove OŠ Preska bo po trenutnih ocenah najdražji projekt v zgodovini Občine Medvode. Za ta namen je bil leta 2023 ustanovljen proračunski sklad, v katerem bo konec letošnjega leta zbranih dobrih 5,1 milijona evrov. Z uspešno kandidaturo na državnem razpisu smo pridobili še 3,34 milijona evrov, zato bo treba zagotoviti dodatna sredstva, tudi z zadolževanjem.
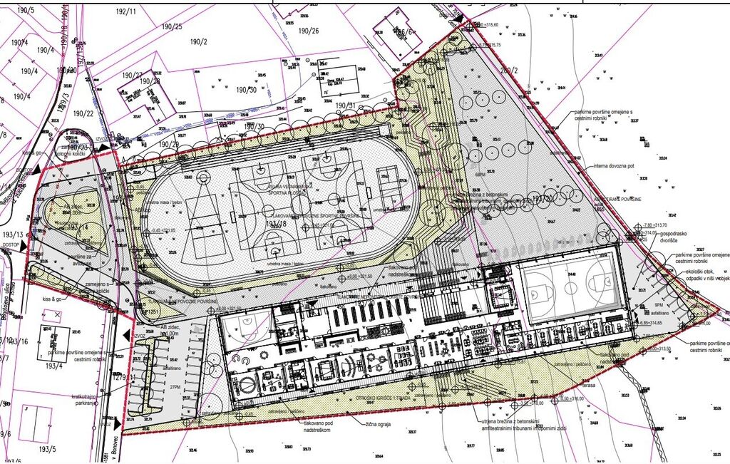
Pred gradnjo šole je predvidena izgradnja športnega igrišča ob novi šoli, ki se bo začela v mesecu januarju. Naslednji koraki vključujejo nadaljevanje priprave potrebne dokumentacije, pospešitev umeščanja nove dostopne ceste ter iskanje dodatnih virov financiranja.





